

Вопрос к неспящим про баню.
Сезон спадает, цены снижаются и я снова готова обратиться к Антону (который нам 3 года назад дачный гостевой домик за 1.3🍋сделал и в прошлом году бытовку) за новой постройкой.
Мы определились, что большой дом вроде бы как и не особо уже нам актуален, но вот одной-две комнаты нам все равно не хватает, поэтому появилась мысль сделать баню с душем, туалетом, большой гостиной/предбанником/допспальней, а также террасой, где можно будет сидеть в осенние вечера компанией. Вдруг у кого-то был уже опыт чего-то подобного? Как вам в эксплуатации? Есть какие-то советы?
Антон предложил примерно такой вариант, но мне все равно чего-то не хватает
P.S: я чет не ожидала такого ажиотажа на него😆
Вижу, что в личных сообщениях горит цифра, но когда открываю, сообщения не отображаются. Ссылка в комментах тоже не отображается, поэтому кому нужен контакт — маякните мне в ватс ап. Пришлю контакт Антона, ссылку на их группу и Авито (мы его там нашли, если вдруг нужно)

Мы тоже начали строить баню, а потом я забеременела, переехала на дачу на 3 года, и баня превратилась в дом с сауной, кухней-гостиной, террасой и спальней на 2 этаже😂 нооо однажды все чуть не сгорело к чертям, и мы выносили спящих детей с задымленного второго этажа🙈
@valyaovsyannikova, @belova_l, в ва напишите — скину
Добрый день, можно контакт Антона)
Нам тоже нужен дачный домик
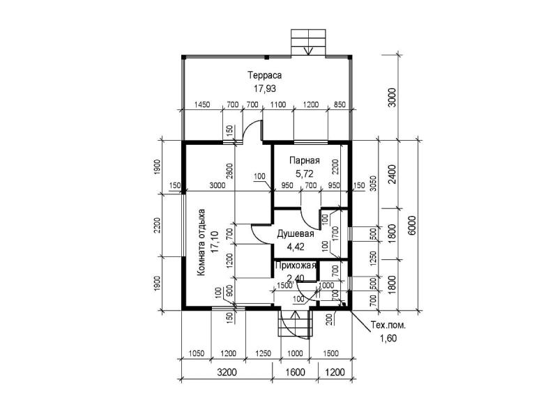
Строили в этом году, одноэтажную 6*4 +терраса 2*6, у нас комната отдыха при входе, как полноценная гостевая комната- диван, стол, телек, вешалка, комод,
Далее душевая и из нее вход в парилку
Что важно на мой взгляд:
1) сразу продумать всю электрику, где розетки, где будет стоять стиралка и тд
2) везде делать тёплый пол или в парилке тоже
3) входная дверь стеклянная- так больше света
4) сразу пусть работяги красят, тк мы задолбались красить
5) делать качественное крыльцо на сваях
6) террасу по возможности делать шире, у нас 2 метра- это мало
7) окна должны быть во всех помещениях, чтобы все время воздух гулял
8) печь ставить так, чтоб с дивана ее было видно- люблю сидеть смотреть на огонь
Вот это я понимаю!
От души душевно в душу)))
С покраской мы также с домой накосячили😂
Внутри ещё сами справились, но на внешнюю часть уже наняли людей. Это жесть была))
Терраса — да, мужу тоже говорю, что хочу широкую и огромную.
Печь мы сначала стеклянную обсуждали, но потом я вспомнила как мой дядя жаловался, что она все равно коптится и нихрена не видно внутри😆🙈
@gaskel коптится после каждой топки, это да😄
Но специальной пшикалкой чистится на раз два👌
Тут главное предусмотреть где будете переодеваться когда выходите из помывочной. Мы в процессе стройки. И вот недавно возник вопрос: " где раздеваться?"
Что то мы слегка тормознули в этом плане. Думаем теперь как устроить этот момент
Спасибо огромное! Верно подметили. Тоже на это внимание обратим тогда сразу
У нас подобная тема
Баня, душ и гостевая. Редко пользуемся))
Терраса ( то бишь беседка) отдельно стоит у нас. Тоже почему то редко пользуемся
Я бы не делала все в одном месте рядом с баней, мало ли что, не безопасно.
У нас Обычно все в доме( если плохая погода) либо просто на улице сидят, когда хорошая погода не хочется где то под крышей быть)))
@gaskel, что почему?
Все вместе не делать?)
Не знаю, если пожар, не дай боже, все пострадает. У нас баня вообще прям достаточно далеко от дома даже стоит.
Да и у многих так, дом отдельно, баня отдельно, если беседка то тоже отдельно)
Похоже у чуда Антона такими темпами времени на вашу баню не будет 😂 можно тоже контакт , хочу теплую террасу у дома )
Ну вот я выше девушке и присылала контакт с просьбой сейчас его у нас не отнимать😂
Напишите мне в ва, отправлю ссылку на вк и контакт
@anna.gol, @kostenyuk87, @mamadani1106, @kssy-kssy, @kroshkaenot, девочки, напишите мне в ва, плиз.
89818490009
Тут зависают сообщения и ссылка в комментариях не отображается почему-то
У нас именно такой гостевой дом с баней. Одна спальня, большая гостиная и терраса
Даже проект сохранился кажется и уже Мишин приятель строил себе по нему дом, только без бани))
В эксплуатации удобен, гостей там размещать приятно, ибо наши дети встают рано например, а гости любят поспать)
@aleksandrovich_ana, спасибо огромное!
Очень хочу❤️
И в театр мы с тобой так и не выбрались вместе
@gaskel, да вот я хотела напомнить про театр, но мы уже болеем по осеннему 😭
Давай напишу тебе, как соберемся на дачу, позовём в гости)
Мы с Майей собираемся в БДТ на Когда я снова стану маленьким. В октябре хотела попасть. Сержику наверное ещё рановато, боюсь, что он не усидит 😅
Напишу тебе, как соберусь билеты покупать
Юля привет. Мы были у Ани в гостях @aleksandrovich_ana , у них прикольный гостевой домик с баней.
Получается терасса, потом большая комната, из нее по разные стороны выходы в еще одну комнату (слева) и в душ и баню (справа). Может у Ани есть их схема и она тебе скинет.
Так как чего-то не хватает вам, по посту:
Может, бассейн внутри?
Лично у меня нет, но когда снимаем домик, то я смотрю, чтобы внутри был тоже бассейн. После бани иногда хочется поплавать
В комнате отдыха не жарко? Очень за это ещё переживаю
@gaskel, нет, но у нас пеноблок. Вот толстые линии - пеноблок, а в мокрой зоне кирпичные перегородки. Плюс в комнатах потолок в скат кровли, а над мокрой - горизонтальное перекрытие и типа чердака наверху. Стены в душевой и туалете только чуть теплее становятся наощупь)) парную утепляли пир-плитами технониколь. Тепло тянет через дверь (кот открывает, проверяет😂), но это сразу чувствуется
У нас баня была: парная, помывочная, постирочная, туалет, комната полноценная, терраса, отличный вариант
У моих друзей получилась баня как гостевой дом,большая кухня гостиная с большущим диваном и сама баня,очень классно,гости могут там спокойно жить как в квартире студии
Были какие-то минусы? Может слышали от них что-то?))
@gaskel если двери распашные, можно подумать как и впихнуть туалет к душевой может 🤔 он там с целью с улицы сразу на унитаз))
@gaskel санузел рядом со спальней сделан, чтоб ночью если приспичит не бегать далеко
@gaskel или может как у нас в ряд идет
Сауна, душа туалетом, спальня, в вдоль всего этого(у нас коридор) , но это же можно представить гостиной 🤔
Если баня на дровах и промывочная с тазами, то по другому
У родственников жилая на втором этаже над всем этим
Но вот на дровах я боюсь
У родителей горела, у родственников горела (( перегревают и плохая изоляция((
У нас с сауной ттт, температуру выставил и не паришься
@irisha10, блин. Меня огонь пугает, конечно, но только потому что в последнее время часто про это слышу. В моем детстве ни у нас, ни у бабушки не горели бани
@gaskel, печку можно сделать электрическую если страшно
По теме не подскажу, но мне тоже нужен антон🙈🤣 скоро строить бытовку , а в последующем баню и дом) киньте в личку пожалуйста 🙏
@gaskel да не не скоро , ближе к лету) и то сначало бытовку)
@gaskel, Юля, доброй ночи, можно, пожалуйста, тоже контакт?🙏🏻 Летом будет очень нужно❤️
@gaskel, добрый день!) можно мне тоже контакт чудо мастера?)))
Мы тоже начали строить баню, а потом я забеременела, переехала на дачу на 3 года, и баня превратилась в дом с сауной, кухней-гостиной, террасой и спальней на 2 этаже😂 нооо однажды все чуть не сгорело к чертям, и мы выносили спящих детей с задымленного второго этажа🙈
Вот одна из причин как раз почему мой муж наотрез отказывался от бани😬
Но и я, и дети ее обожают, поэтому он сдался
@gaskel или он будет тусить как раз в этой бане)) у родственников так вышло
Он там типо отдельно живет)
@irisha10, ну вот поэтому и думаем, что 1 комната отдельная точно нужна😂