

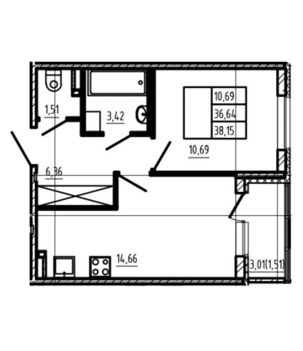
Девчат, в сб утром с клиентами поедем на показ квартиры без ПВ. ПВ за вас платит застройщик ☝️Кто с нами? Можем взять еще 2 семьи.
Умный дом, дозаказ чистовой отделки в ипотеку, рядом лес, дс, в проекте школа. Новый, быстро развивающийся проект, который реально дорожает с каждым днем.
Кому интересно - пишите в личку, еще можно зайти под эту акцию и взять классную квартиру без ПВ под 6% на весь срок без удорожания. А еще скидки за использование Маткапитала (-100 000 и просмотр квартиры -50 000 и, конечно учителям и врачам еще -50 000) Просто сказка! Дома построены и введены в эксплуатацию, получение ключей до 31.03.2026. Да, такое существует)
нет, это не Петроградка , но район классный 😉

Опытный квалифицированный специалист по детскому массажу и лфк. Образование медицинское. Специализация по детству. Сертификат по детству. Стаж работы более 20 лет в госучереждении на отделении реабилитации детей. Выезжаю во все районы, кроме Красносельского.
Тел.8 921 405 19 15.
Валентина Алексеевна
Отзывы
ссылка
Группа в контакте
ссылка
Можно подробности в личку🙏🙏🙏