





А над наименованием вашей специализации часто шутили?😅
Над моей только ленивый не пошутил🙈
Дизайнер среды.
"А что, по другим дням не работаешь?" - самая частая шутка.
Так что по средам ожидайте от меня планировочки😅
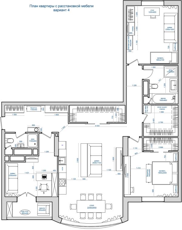
Дано: квартира 130 квадратов.
Надо: сделать детскую со спальным местом для няни, спальню, гардеробную в спальне, гостиную, совмещенную с кухней, гардеробную с постирочной зоной, кабинет мужу , но не из балкона, большой сан.узел с душевой и гостевой сан.узел с душевой.
Какой вариант нравится, а какой считаете неприемлемым?
Почему задаю вопрос? Потому что две планировки имеют большие шансы не осуществиться. Тут очень много зависит от политики УК. Ну, и от законов России)
Но, если у вас есть хороший юрист....😅😉



@anyuna32 ага, вроде 130 квадратов, вах! А по факту не складывается картинка. Интересно!
@poliskowronek она написала не про 3 фото, а про третий вариант. Там сверху подписанны планировки. И 5 фото как раз и есть 3 вариант)
Да, в итоге только так получалось сделать кладовку. Но это на плане БТИ, когда квартира без замеров. В дальнейшем , конечно, она бы видоизменилась. Но не факт, что в большую сторону😅
Есть варианты, которые можно оспорить, но решили не лезть в это дело. Варианты сделаны исключительно по настоянию клиента. С моими предупреждениями и пометками, что велика вероятность, что не одобрят.
У вас во всех вариантах кроме третьего перенесена кухня черте куда. Так вам сделать не разрешат.
Я тоже дизайнер среды 😂😂 и постоянно все так же шутят