





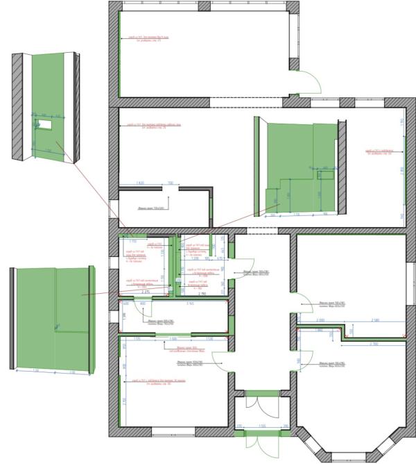
Планировочное решение — это фундамент дизайна. Именно оно определяет, насколько удобным и гармоничным будет ваш интерьер. Красивые обои и дорогая мебель не спасут, если пространство спланировано неправильно. Грамотная планировка позволяет сэкономить деньги и использовать каждый квадратный метр с максимальной пользой. Это сценарий вашей жизни в интерьере, где всё на своём месте и работает на ваш комфорт.
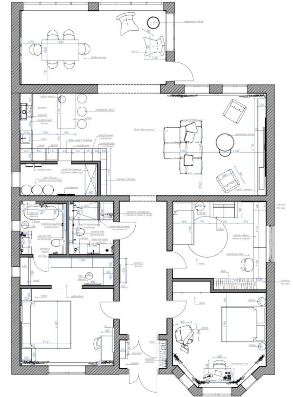
На фото можете увидеть как преобразился дом, после перепланировки мы получили мастер-спальню, удобные детские, кухню-гостиную с тайной комнатой