Мастер-спальня с гардеробной и ванной: как с пылью?
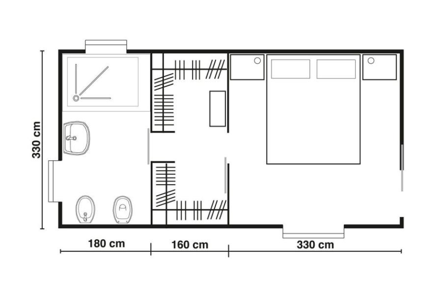
Девочки, а есть у кого-то есть мастер-спальня с гардеробной и ванной? В гардеробной просто полки, никак не закрыта одежда? Как с пылью обстоят дела в этом случае? Как вам вообще такая планировка? На картинке как пример
У нас была гардеробная без дверей, но не в спальне, а на все общем обозрении. Я задолбалась все красиво раскладывать там, чтобы не было визуального шума, и всегда был порядок. Прям бесила она меня. Потом поставили двери.
Но на вашем плане это как отдельная комната, которую никто, по сути, не видит. Мне кажется, отличный вариант. Пыли там не больше, чем в обычном шкафу
У нас была гардеробная без дверей, но не в спальне, а на все общем обозрении. Я задолбалась все красиво раскладывать там, чтобы не было визуального шума, и всегда был порядок. Прям бесила она меня. Потом поставили двери.
Но на вашем плане это как отдельная комната, которую никто, по сути, не видит. Мне кажется, отличный вариант. Пыли там не больше, чем в обычном шкафу