
Может у кого то такая же планировка и вы объединяли кухню с комнатой и продлевали коридор,чтобы были две отдельные комнаты.Или у ваших знакомых так объединено.
В идеале конечно посмотрела бы фото ремонта,расстановки мебели и прочее) Покажите, если есть возможность?)
Сомневаюсь конечно нужен ли нам такой ремонт,когда в планах все равно новостройка лет через 5, но всё же мысли всё больше и больше закрадываются.
У нас не такая планировка, но когда мы купили квартиру.... То тоже узнали потом что между спальней и кухней несущая стена 🙈оставили как есть, у нас огромный зал получился, балкон снесли
У друзей была такая планировка в панельном доме, стену между кухней и спальней сносить было запрещено. Они снесли стену, где дверь в комнату 10,4, и там сделали гостиную, было ощущение простора и кухня на месте со своими запахами и звуками
Мы жили в панельном доме. Там все перегородки несущие. Сносить нельзя. Можно сделать проем в стене, но тогда нужно укреплять остатки этой стены. Это дорого и затратно. Я решила не заморачиваться.
Ныньче стройматериалы дороги
Я бы посчитала смету на данные работы
И думаю, что приняла решение : лучше кинуть все финансовые силы на новостройку
При продаже ремонт все равно не особо ценится, все делают по своему вкусу
я бы продлила коридор, а между кухней и залом сделала большую дверь(двойную). объединять бы не стала
Ну и кухню с гостиной объединила😄 не люблю маленькие кухни. Хочу хлеб с маслом 5 минут от холодильника до стола нести🤣
Я бы коридор длинный сделала бы.. как-то странно при такой квадратуре иметь комнату в комнате.. лучше отделить, чтобы спальня и детские не соприкасались, а то не будет ощущения личного пространства
У нас такая была. Панельный дом. Несущая стена между комнатой и кухней, сносить запрещено. Тоже хотели продлить коридор, это можно сделать. У нас соседи снизу так сделали.
Короче так себе планировка) может и не стоит оно того вовсе,морочиться..
@hanny13 Я бы не стала заморачиваться, если Вы все равно планируете переезд.
@schastlivuy_gnom, наша дальняя) в зале тоже с гостями сидим, детская пока пустует, сын с нами спит.
@schastlivuy_gnom, мы уже заехали, санузел был совмещен) у нас тут ТСЖ, видимо они и так в курсе.
Тут больше вопрос к кухне-гостиной) комнаты само собой отделять при объединении кухни и спальни детской.
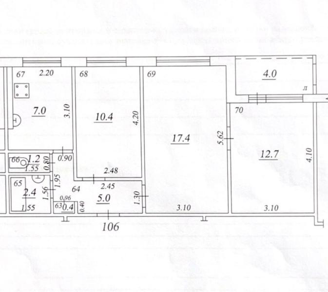
Кухня с комнатой для меня так прошлый век.. я вообще чот не поняла вашей планировки , с подъезда зашли справа комната , через которую выход в коридор , где: туалет , ванная комната, кухня и еще одна комната ?или я че то вообще не бум бум
@alexaa345 если написать "никому не в обиду", то все написанные неприятности превратятся в добрые слова 😄
Кухня с комнатой для меня так прошлый век.. я вообще чот не поняла вашей планировки , с подъезда зашли справа комната , через которую выход в коридор , где: туалет , ванная комната, кухня и еще одна комната ?или я че то вообще не бум бум